




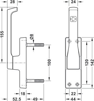
1 dveřní páka ovládající zamykací závoru
2 protiplechy


| Verze | | připojení tyče nahoře a dole |
|---|---|
| Barva/povrchová úprava | | Barva stříbra, Elox, Stříbrný elox |
| Rozsah použití | | Pro dřevěné dveře |
| Materiál | | Hliník |
| Zdvih | | 23,00 mm |
| Montáž | | DIN levý | DIN pravý |
| Směr zamykání | | postranní |
| Ovládání závory | | Se sklopnou páčkou |