




1 rovnoběžně výklopné kování (1 kus levý/pravý, včetně čelního kování pro dřevěné výklopy nebo výklopy s širokým hliníkovým rámečkem, montážního návodu a papírové vrtací šablony)





| Rozsah použití | Pro jednodílné výklopy ze dřeva, skla nebo s hliníkovým rámečkem |
|---|---|
| Materiál | Kování: plast, ocel |
| Model | | O1us | O2us | O3us | P1us | P2us | P3us | P4us | Q1us | Q2us | Q3us | Q4us | R1us | R2us | R3us | R4us |
| Pro hmotnost víka | | 4.1 – 8 kg | 7.4 – 14 kg | 3 – 5,7 kg | 4.8 – 9,3 kg | 8.7 – 16,5 kg | 2.4 – 4,8 kg | 11 – 19,6 kg | 2 – 3,8 kg | 3.4 – 6,7 kg | 6.3 – 11,8 kg | 9.3 – 17,4 kg | 1.6 – 3,3 kg | 2.6 – 5,5 kg | 5 – 9,7 kg | 7.4 – 14,6 kg |
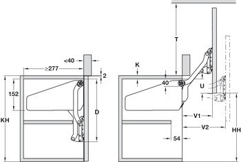
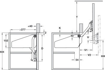
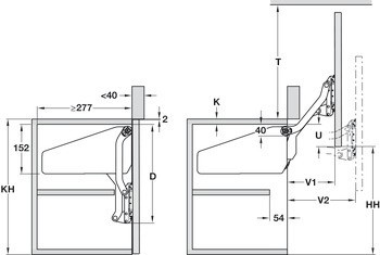
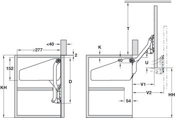
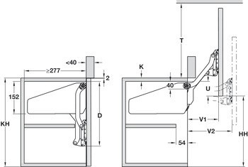
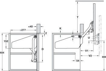
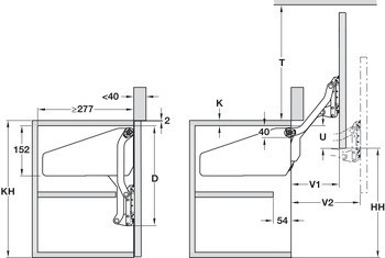
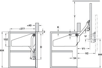
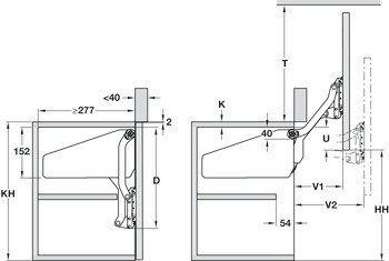
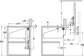
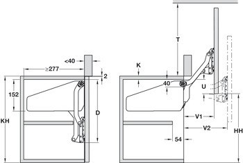
| Pro výšku korpusu | | 320 – 360 mm | 345 – 420 mm | 380 – 500 mm | 430 – 600 mm |
| Materiál víka | Dřevo, Sklo, Hliníkový rámeček |
| Barva/povrchová úprava | Kování: nikl |
| Typ výklopu | jednodílné |