




Se 4 háčky na klíče od domu a auta

| Verze | | Otevření zatlačením |
|---|---|
| Barva/povrchová úprava | | Schránka: černá |
| Rozsah použití | | Pro širokou škálu použití |
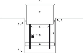
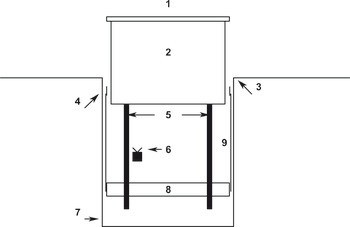
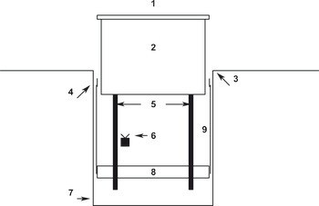
| Montáž | | Předmontované výsuvy a protizávaží,schránka může být vložena přímo do výřezu v pracovní desce |
| Materiál | | Ocelkryt: nerez |
| Vhodné pro | | Klíče |
| Poznámka k montáži | | Varianty montáže krytu1. Povrchová montážs nerezový krytem/individuálním krytem2. Montáž v roviněs nerezový krytem/individuálním krytem3. Zapuštěná montážs přizpůsobeným krytem max. 12 mm (pracovní deska min. 30 mm) |
| Barva | |
| Zdvih | | 200,00 mm |