





| Verze | | Lze kombinovat s centrálními tlačnými zámky nebo zámky k přišroubování |
|---|---|
| Barva/povrchová úprava | |
| Rozsah použití | |
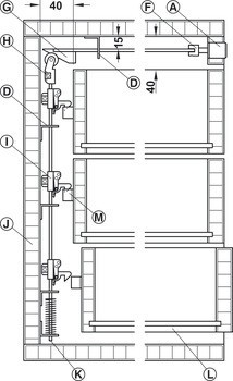
| Montáž | | K přišroubování, s výškově nastavitelnými pružinovými záskočkami, vodítka pro zamykací tyče |
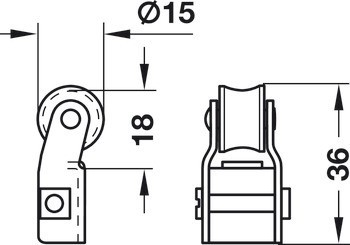
| Materiál | |
| Materiál | Ocel |
| Vhodné pro | | Uzavřený typ |
| Typ produktu |