






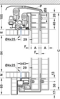
| Montáž | k naklapnutí nebo přišroubování shora nebo zdola |
|---|---|
| Materiál | Hliník |
| Barva/povrchová úprava | Barva stříbra, elox |
| Vhodné pro | Häfele Slido F-Line44 80A |
| Typ produktu | Dvojitá pojezdová kolejnice |
| Délka | 2,500 mm | 3,500 mm |
| Pro hmotnost dveří | ≤80 kg |
| Verze kolejnice | Dvojité |
| Poloha | horní |