









| Montáž | pro montáž pomocí klipů | k přišroubování shora nebo zdola |
|---|---|
| Materiál | Hliník |
| Barva/povrchová úprava | Barva stříbra, elox | Černý, elox |
| Vhodné pro | Häfele Slido F-Line44 80A |
| Typ produktu | Dvojitá vodicí kolejnice |
| Délka | 2,500 mm | 3,500 mm |
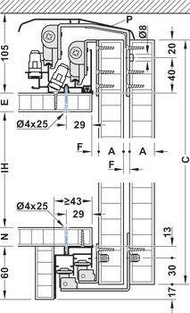
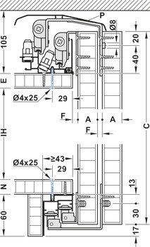
| Rozměry (Š x V) | 48 x 60 mm | 43 x 60 mm |
| Verze kolejnice | Dvojité |
| Poloha | spodní |