




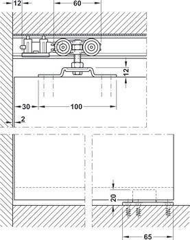
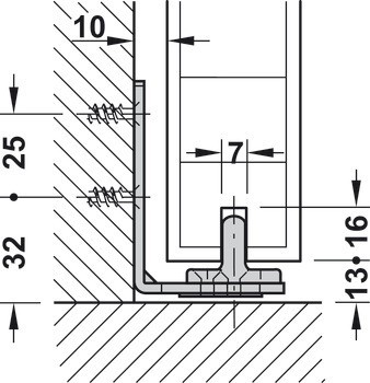
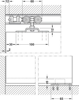
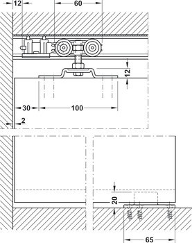
2 Vozíky
1 doraz kolejnice s přídržnou pružinou
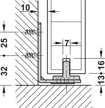
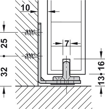
1 doraz na stěnu
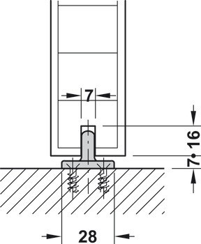
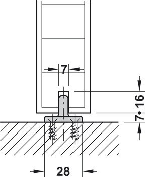
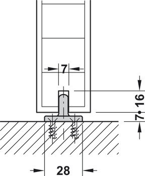
1 podlahové vedení

| Rozsah použití | Pro 1 dveře |
|---|---|
| Model | 45 H |
| Zařízení pro nastavení | Height adjustment: -3 – 3 mm |
| Pro tloušťku dveří | 28 – 40 mm |
| Pro materiál dveří | dřevo |
| Pro výšku dveří | ≤2,200 mm |
| Počet dveří v systému max. | 1 až 2 |
| Počet dveří | 1,00 |
| Pro šířku dveří | ≤1,000 mm |
| Pro hmotnost dveří | ≤45 kg |
| Poloha pojezdu | Nahoře |
| Zpracování dveří | k přišroubování |
| Typ montáže | Montáž na strop, Montáž na stěnu |