









| Barva/povrchová úprava | | Sépiově hnědá, RAL 8014 | Signální černá, RAL 9004 | Signální bílá, RAL 9003 | Barva slonová kost, RAL 1015 |
|---|---|
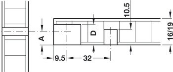
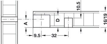
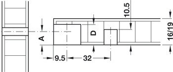
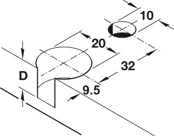
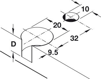
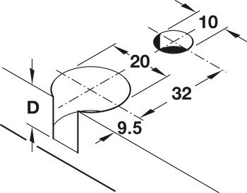
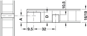
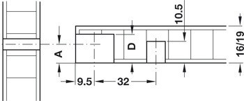
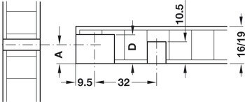
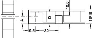
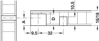
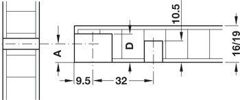
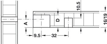
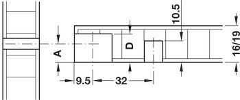
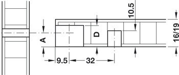
| Pro tloušťku dřeva | | ≥19 mm | ≥16 mm |
| Materiál | Plast, Utahovací díl: Zinková slitina |
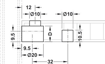
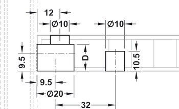
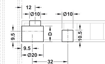
| Hloubka vrtání | | 14,2 mm +0,2 mm | 12,7 mm +0,2 mm |
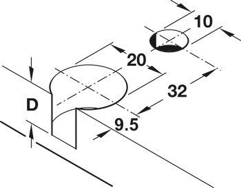
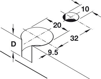
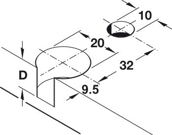
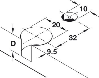
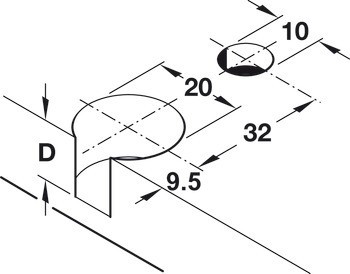
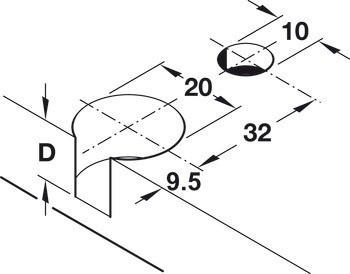
| Rozměr A | | 8.00 mm | 9,50 mm | 9.50 mm |
| Drážka | Křížová drážka PZ2 |
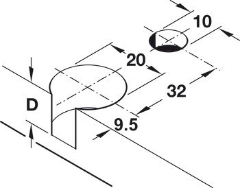
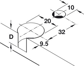
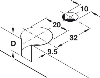
| Průměr vrtaného otvoru těla | 20,00 mm | 20.00 mm |
| Verze | | s límcem|se zesílením|s utahovacím dílem|s hmoždinkou | s límcem|s utahovacím dílem|s hmoždinkou|bez hřbetu |
| Zesílení | | bez | včetně |