








| Barva/povrchová úprava | nikl |
|---|---|
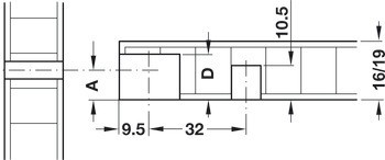
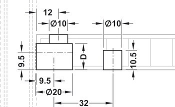
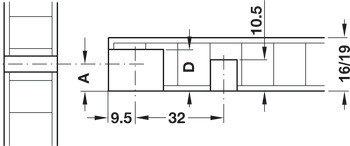
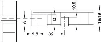
| Pro tloušťku dřeva | | ≥19 mm | ≥16 mm |
| Materiál | Zinková slitina, Utahovací díl: Zinková slitina |
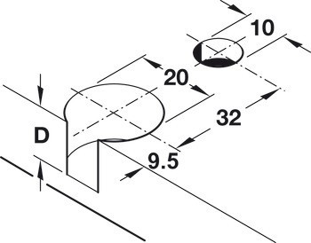
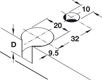
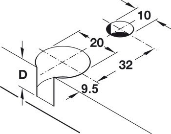
| Hloubka vrtání | | 14.2 mm +0.2 mm | 12.7 mm +0.2 mm |
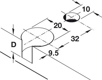
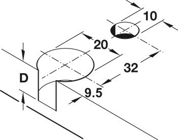
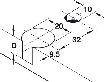
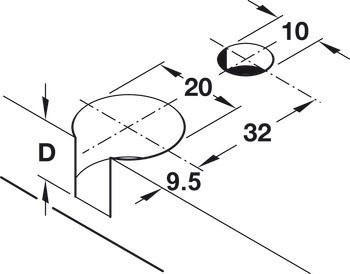
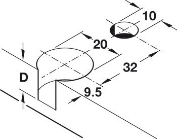
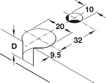
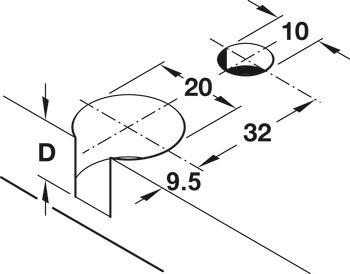
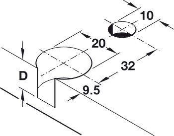
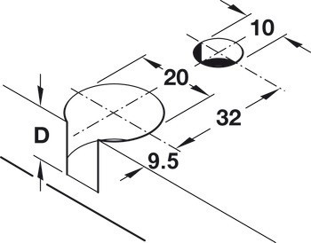
| Rozměr A | | 8,00 mm | 9,50 mm | 9.50 mm |
| Drážka | Křížová drážka PZ2 |
| Průměr vrtaného otvoru těla | 20,00 mm | 20.00 mm |
| Verze | | s límcem|se zesílením|s utahovacím dílem|s hmoždinkou | s límcem|s utahovacím dílem|s hmoždinkou|bez hřbetu |
| Zesílení | | bez | včetně |