




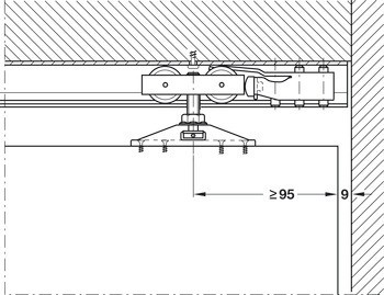
2 vozíky
2 oboustranná závěsná kování se závěsnými šrouby a maticí, M8
1 doraz kolejnice s přídržnou pružinou
1 doraz na stěnu
1 podlahové vedení s nulovou tolerancí
1 kolíček pro nastavení výšky


| Verze | | s dorazem kolejnice na jedné straně, s dorazem na stěnu na jedné straně | s dorazy kolejnice na obou stranách |
|---|---|
| Rozsah použití | | Pro 1křídlé a 2křídlé posuvné dveře |
| Model | | 40 Z |
| Zařízení pro nastavení | | Height adjustment ±3 mm, Výška ±4 mm, boční nastavení dveřídoraz kolejnice s nastavitelnou přídržnou pružinou |
| Pro tloušťku dveří | | 35 – 80 mm |
| Pro materiál dveří | | dřevo |
| Pro výšku dveří | | ≤4,000 mm |
| Počet dveří v systému max. | | 1 až 2 |
| Počet dveří | | 1,00 |
| Pro šířku dveří | | ≤3,000 mm |
| Pro hmotnost dveří | | ≤40 kg |
| Poloha pojezdu | | Nahoře |
| Zpracování dveří | | k přišroubování |
| Montáž | | Zavěšení s přišroubovaným oboustranným zavěšením |
| Typ montáže | | Montáž na strop, Montáž na stěnu |
| Klasifikace v souladu s EN 1527 | | -|6|1|-|1|0|-|1|3 |
| Norma | | Certifikováno v souladu s EN 1527:2013 |