




2 vozíky
2 nosné profily se závěsnými přírubami vozíku, M12
1 SoftMove 120 včetně dorazu kolejnice
1 doraz kolejnice s přídržnou pružinou
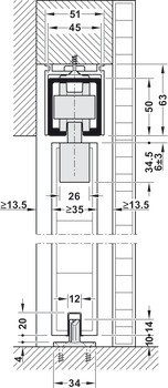
1 rovné prahové podlahové vedení 35 mm
Příslušenství



| Verze | | s dorazem kolejnice na jedné straně, s dorazem na stěnu na jedné straně | S mechanismem tlumeného dotahu na jedné straně | s dorazy kolejnice na obou stranách |
|---|---|
| Rozsah použití | Pro 1křídlé a 2křídlé posuvné dveře |
| Model | 120 B |
| Zařízení pro nastavení | Height adjustment ±3 mm, Doraz kolejnice s nastavitelnou přídržnou pružinou |
| Pro tloušťku dveří | 35 – 80 mm |
| Pro materiál dveří | dřevo |
| Pro výšku dveří | ≤4,000 mm |
| Počet dveří v systému max. | 1 až 2 |
| Počet dveří | | 1,00 | 1.00 |
| Mechanismus tlumeného zavírání | s mechanismem tlumeného dotahu na jedné straně |
| Pro šířku dveří | | ≤3,000 mm | 850 – 3,000 mm |
| Pro hmotnost dveří | ≤120 kg |
| Poloha pojezdu | Nahoře |
| Zpracování dveří | k přišroubování |
| Vhodné pro | Minimální montážní výška |
| Montáž | Zavěšení se zapuštěným podpěrným profilem |
| Typ montáže | Montáž na strop, Montáž na stěnu |
| Klasifikace v souladu s EN 1527 | -|6|3|-|1|0|-|1|3 |
| Poznámka k šířce dveří | Max. šířka dveří pro řešení kapsy ve stěně je 1500 mm. |
| Norma | Certifikováno v souladu s EN 1527:2013 |